07
December
2025

Szkoła Podstawowa im. Polskich Noblistów w Nowych Skalmierzycach,
ul. Kaliska 52, 63-460 Nowe Skalmierzyce, Tel. 62 762 13 71
www.gimnazjum.noweskalmierzyce.pl
Obwód szkoły: Wieś: Gniazdów, Biskupice, Boczków, Skalmierzyce, ul. Boczkowska i Kaliska
Miasto: Nowe Skalmierzyce ul. Kaliska, Boczkowska, 1 maja, Nowa, Hallera, J. Krasickiego, W. Sikorskiego, 29 Grudnia. Plac Wolności, Wyszyńskiego, Tartakowa, Dojazdowa
ODDZIAŁ PRZEDSZKOLNY
w Szkole Podstawowej im. Polskich Noblistów w Nowych Skalmierzycach
Od roku szkolnego 2017/2018 w szkole Podstawowej prowadzone beda oddziały przedszkolne. W związku z wprowadzona reforma oświaty Rada Gminy i Miasta Nowe Skalmierzyce w uchwale nr XXXIV.255.2017 z dnia 24 marca 2017 roku w sparwie dostaosowania sieci szkól podstawowych i gimnazjów do nowego ustroju szkolnego utworzyła oddział przedszkolny przy nowopowstałej Szkole Podstawowej im. Polskich Noblistów w Nowych Skalmierzycach.
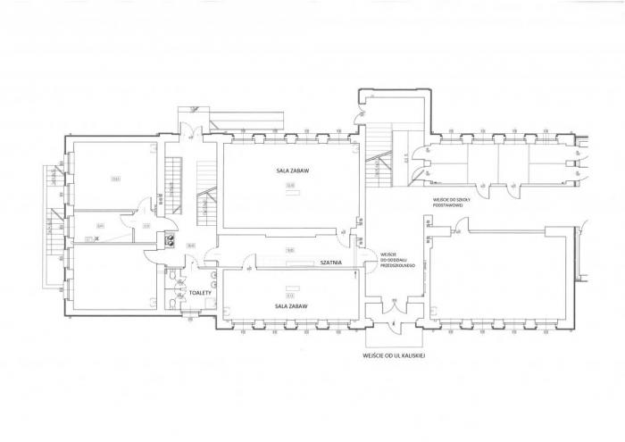
Dlatego zachęcamy rodziców z obwodu nowo powstałej szkoły do zapisywania dzieci do oddziału przedszkolnego przy ul. Kaliskiej 52. Zapewniamy w ramach opieki w oddziale przedszkolnym wyżywienie, nowoczesne i dobrze wyposażone sale lekcyjne oraz czas opieki dostosowany do potrzeb rodziców. W miesiącach lipiec-sierpień 2017roku zostanie przeprowadzony gruntowny remont starej częsci szkoły w której będzie sie mieścił oddział przedszkolny wraz z nową szatnia i toaletą. ZAPRASZAMY!
Wejście główne do oddziału przedszkolnego: od ul. Kaliskiej
Nabór do oddziału przedszkolnego: 10-21 kwietnia 2017
Godziny otwarcia oddziału : 9 godzin ( według potrzeb rodziców)
Szkoła Podstawowa im. Polskich Noblistów w Nowych Skalmierzycach
W wyniku planowanej reformy nie ma konieczności rozbudowy szkoły. Szkoła została by przekształcona z Gimnazjum na Szkołę Podstawową. Placówka dysponuje salą gimnastyczną o wymiarach 12 x 22 m x 8h, boiskiem o nawierzchni sztucznej 22m x 44m, 23 salami lekcyjnymi, pokojem nauczycielskim, sekretariatem, gabinetem dyrektora, stołówką oraz zapleczem kuchennym.
W ramach nowopowstałej z przekształcenia Szkoły Podstawowej określa się następujący sposób jej tworzenia w ramach podziału obwodu Szkoły Podstawowej im. Powstańców Wlkp. w Nowych Skalmierzycach
|
Nazwa i adres szkoły |
Rok szkolny 2017/2018 |
Rok szkolny 2018/2019 |
Rok szkolny 2019/2020 |
|
Szkoła Podstawowa im. Polskich Noblistów w Nowych Skalmierzycach z siedzibą w Nowych Skalmierzycach, ul. Kaliska 52, 63-460 Nowe Skalmierzyce. |
W roku szkolnym 2017/2018 tworzy się w szkole odziały klasy I , IV, VII
W szkole funkcjonują klasy dotychczasowego gimnazjum II, III
|
W roku szkolnym 2018/2019 tworzy się w szkole odziały klasy I, II , IV, V, VII, VIII
W szkole funkcjonują klasy dotychczasowego gimnazjum III
|
W roku szkolnym 2018/2020 tworzy się w szkole odziały klasy I, II, III, IV, V, VI, VII, VIII
|
Zgłoszenie dziecka do I klasy Szkoły Podstawowej im. Polskich Noblistów w Nowych Skalmierzycach
Zapraszamy rodziców uczniów klas IV i VII uczęszczających do Szkół Podstawowych do składania wniosków o przyjęcie do nowo powstałej Szkoły Podstawowej im. Polskich Nobliwstów w Nowych Skalmierzycach
Wniosek o przyjęcie do klasy IV lub VII z innej szkoły
Rok szkolny 2016/2017
Gimnazjum im. Polskich Noblistów w Nowych Skalmierzycach
|
Rocznik |
Klasa |
Liczba dzieci w szkole |
Liczba oddziałów |
|
|
2001 |
III |
102 |
4 |
|
|
2002 |
II |
99 |
4 |
|
|
2003 |
I |
95 |
4 |
|
|
Stan na dzień 30.09.2016 |
296 |
12 |
|
|
Rok szkolny 2017/2018
|
Rocznik |
Klasa |
Liczba dzieci w szkole |
Liczba oddziałów |
Liczba dzieci według ewidencji ludności |
|
2002 |
III – Gimnazjum |
99 |
4 |
|
|
2003 |
II – Gimnazjum |
95 |
4 |
|
|
|
|
|
|
|
|
Razem |
194 |
8 |
|
|
Szkoła Podstawowa im. Polskich Noblistów w Nowych Skalmierzycach
|
Rocznik |
Klasa |
Liczba dzieci w szkole |
Liczba oddziałów |
Liczba dzieci według ewidencji ludności |
|
2004 |
VII |
|
2 |
31 |
|
|
VI |
|
|
|
|
|
V |
|
|
|
|
2007+2008 |
IV |
|
2 |
42 |
|
|
III |
|
|
|
|
|
II |
|
|
|
|
2010 |
I |
|
2 |
39 |
|
Razem |
|
6 |
112 |
|
Oddział przedszkolny
|
Rocznik |
Klasa |
Liczba dzieci w oddziałach przedszkolnych |
Liczba oddziałów |
Liczba dzieci według ewidencji ludności |
|
2011 |
„0” |
18 |
1 |
|
|
2011 |
„0” |
18 |
1 |
|
|
Razem |
36 |
2 |
|
|
Rok szkolny 2018/2019
|
Rocznik |
Klasa |
Liczba dzieci w szkole |
Liczba oddziałów |
Liczba dzieci według ewidencji ludności |
|
2003 |
III – gimnazjum |
95 |
4 |
|
|
|
|
|
|
|
|
Razem |
95 |
4 |
|
|
Szkoła Podstawowa im. Polskich Noblistów w Nowych Skalmierzycach
|
Rocznik |
Klasa |
Liczba dzieci w szkole |
Liczba oddziałów |
Liczba dzieci według ewidencji ludności |
|
2004 |
VIII |
|
2 |
31 |
|
2005 |
VII |
|
2 |
44 |
|
|
VI |
|
|
|
|
2007+2008 |
V |
|
2 |
42 |
|
2008+ 2009 |
IV |
|
2 |
42 |
|
|
III |
|
|
|
|
2010 |
II |
|
2 |
39 |
|
2011 |
I |
|
2 |
36 |
|
Razem |
|
12 |
234 |
|
Oddział przedszkolny
|
Rocznik |
Klasa |
Liczba dzieci w oddziałach przedszkolnych |
Liczba oddziałów |
Liczba dzieci według ewidencji ludności |
|
2012 |
„0” |
21 |
1 |
|
|
2012 |
„0” |
22 |
1 |
|
|
Razem |
43 |
2 |
|
|
Rok szkolny 2019/2020
Szkoła Podstawowa im. Polskich Noblistów w Nowych Skalmierzycach
|
Rocznik |
Klasa |
Liczba dzieci w szkole |
Liczba oddziałów |
Liczba dzieci według ewidencji ludności |
|
2005 |
VIII |
|
2 |
44 |
|
2006 |
VII |
|
2 |
31 |
|
2007+2008 |
VI |
|
2 |
42 |
|
2008+ 2009 |
V |
|
2 |
42 |
|
2009 + 2010 |
IV |
Brak oddziału |
2 |
41 |
|
2010 |
III |
|
2 |
39 |
|
2011 |
II |
|
2 |
36 |
|
2012 |
I |
|
2 |
43 |
|
Razem |
|
16 |
318 – 41= 277 |
|
Oddział przedszkolny
|
Rocznik |
Klasa |
Liczba dzieci w oddziałach przedszkolnych |
Liczba oddziałów |
Liczba dzieci według ewidencji ludności |
|
2013 |
„0” |
20 |
1 |
|
|
2013 |
„0” |
19 |
1 |
|
|
Razem |
39 |
2 |
|
|
Rok szkolny 2020/2021
Szkoła Podstawowa im. Polskich Noblistów w Nowych Skalmierzycach
|
Rocznik |
Klasa |
Liczba dzieci w szkole |
Liczba oddziałów |
Liczba dzieci według ewidencji ludności |
|
2006 |
VIII |
|
2 |
31 |
|
2007+2008 |
VII |
|
2 |
42 |
|
2008+ 2009 |
VI |
|
2 |
42 |
|
2009 + 2010 |
V |
Brak oddziału |
2 |
41 |
|
2010 |
IV |
|
2 |
39 |
|
2011 |
III |
|
2 |
36 |
|
2012 |
II |
|
2 |
43 |
|
2013 |
I |
|
2 |
39 |
|
Razem |
|
16 |
313-41 = 272 |
|
Oddział przedszkolny
|
Rocznik |
Klasa |
Liczba dzieci w oddziałach przedszkolnych |
Liczba oddziałów |
Liczba dzieci według ewidencji ludności |
|
2014 |
„0” |
25 |
1 |
|
|
2014 |
„0” |
25 |
1 |
|
|
Razem |
50 |
2 |
|
|
Rok szkolny 2021/2022
Szkoła Podstawowa im. Polskich Noblistów w Nowych Skalmierzycach
|
Rocznik |
Klasa |
Liczba dzieci w szkole |
Liczba oddziałów |
Liczba dzieci według ewidencji ludności |
|
2007+2008 |
VIII |
|
2 |
42 |
|
2008+ 2009 |
VII |
|
2 |
42 |
|
2009 + 2010 |
VI |
Brak oddziału |
2 |
41 |
|
2010 |
V |
|
2 |
39 |
|
2011 |
IV |
|
2 |
36 |
|
2012 |
III |
|
2 |
43 |
|
2013 |
II |
|
2 |
39 |
|
2014 |
I |
|
2 |
50 |
|
Razem |
|
16 |
332 – 41 = 291 |
|
Oddział przedszkolny
|
Rocznik |
Klasa |
Liczba dzieci w oddziałach przedszkolnych |
Liczba oddziałów |
Liczba dzieci według ewidencji ludności |
|
2015 |
„0” |
22 |
1 |
|
|
2015 |
„0” |
22 |
1 |
|
|
Razem |
44 |
2 |
|
|
Liczba urodzonych dzieci w poszczególnych rocznikach według miejsca zameldowania
|
|
2004 |
2005 |
2006 |
2007 |
2008 |
2009 |
2010 |
|
Gniazdów |
0 |
1 |
0 |
0 |
1 |
0 |
0 |
|
Boczków |
6 |
4 |
3 |
6 |
2 |
3 |
5 |
|
Biskupice |
4 |
2 |
1 |
0 |
2 |
1 |
2 |
|
Skalmierzyce |
|
|
|
|
|
|
|
|
ul. Boczkowska |
3 |
4 |
0 |
2 |
3 |
2 |
1 |
|
ul. Kaliska |
0 |
0 |
0 |
0 |
0 |
0 |
1 |
|
Nowe Skalmierzyce |
|
|
|
|
|
|
|
|
ul. Kaliska |
15 |
21 |
21 |
21 |
28 |
25 |
23 |
|
ul. Boczkowska |
0 |
1 |
0 |
1 |
0 |
1 |
0 |
|
ul. 1 Maja |
0 |
2 |
1 |
0 |
1 |
0 |
1 |
|
ul. Nowa |
1 |
2 |
1 |
1 |
0 |
2 |
0 |
|
ul. Hallera |
0 |
0 |
0 |
0 |
0 |
0 |
0 |
|
ul. J. Krasickiego |
0 |
2 |
0 |
2 |
0 |
0 |
0 |
|
ul. W. Sikorskiego |
0 |
1 |
0 |
0 |
0 |
1 |
0 |
|
ul. Dojazdowa |
0 |
1 |
0 |
0 |
0 |
0 |
1 |
|
Tartakowa |
0 |
0 |
0 |
0 |
0 |
0 |
0 |
|
29 Grudnia |
0 |
1 |
2 |
2 |
3 |
4 |
4 |
|
Plac wolności |
1 |
1 |
1 |
1 |
1 |
1 |
1 |
|
Wyszyńskiego |
1 |
1 |
1 |
6 |
1 |
1 |
0 |
|
Razem |
31 |
44 |
31 |
42 |
42 |
41 |
39 |
Liczba urodzonych dzieci w poszczególnych rocznikach według miejsca zameldowania
|
|
2011 |
2012 |
2013 |
2014 |
2015 |
2016 |
|
Gniazdów |
3 |
4 |
2 |
4 |
3 |
2 |
|
Boczków |
5 |
3 |
9 |
5 |
6 |
6 |
|
Biskupice |
0 |
3 |
1 |
2 |
1 |
1 |
|
Skalmierzyce |
|
|
|
|
|
|
|
ul. Boczkowska |
0 |
1 |
1 |
2 |
0 |
0 |
|
ul. Kaliska |
0 |
1 |
0 |
1 |
0 |
0 |
|
Nowe Skalmierzyce |
|
|
|
|
|
|
|
ul. Kaliska |
21 |
24 |
17 |
25 |
26 |
19 |
|
ul. Boczkowska |
0 |
0 |
0 |
1 |
0 |
0 |
|
ul. 1 Maja |
1 |
1 |
0 |
3 |
1 |
2 |
|
ul. Nowa |
3 |
2 |
4 |
1 |
2 |
0 |
|
ul. Hallera |
0 |
1 |
0 |
0 |
2 |
1 |
|
ul. J. Krasickiego |
0 |
0 |
0 |
0 |
2 |
1 |
|
ul. W. Sikorskiego |
0 |
0 |
0 |
2 |
0 |
1 |
|
ul. Dojazdowa |
0 |
1 |
0 |
1 |
0 |
0 |
|
Tartakowa |
0 |
0 |
1 |
0 |
0 |
0 |
|
29 Grudnia |
1 |
1 |
2 |
2 |
1 |
0 |
|
Plac wolności |
1 |
0 |
1 |
0 |
0 |
0 |
|
Wyszyńskiego |
1 |
1 |
1 |
1 |
0 |
1 |
|
Razem |
36 |
43 |
39 |
50 |
44 |
34 |
W opracowaniu przyjęto dane z SIO z 2016 roku oraz dane szacunkowe na podstawie danych z ewidencji ludności.